La Capellania

Te koop Vrijstaande Villa Costa Del Sol La Capellania € 1.375.000,-

Ref.no: RSOR5217520
Price: € 1.375.000,-

1-7980e48d732b6fc85c14b43b94d2aa54.jpg

Te koop Vrijstaande Villa Costa Del Sol La Capellania € 1.375.000,-

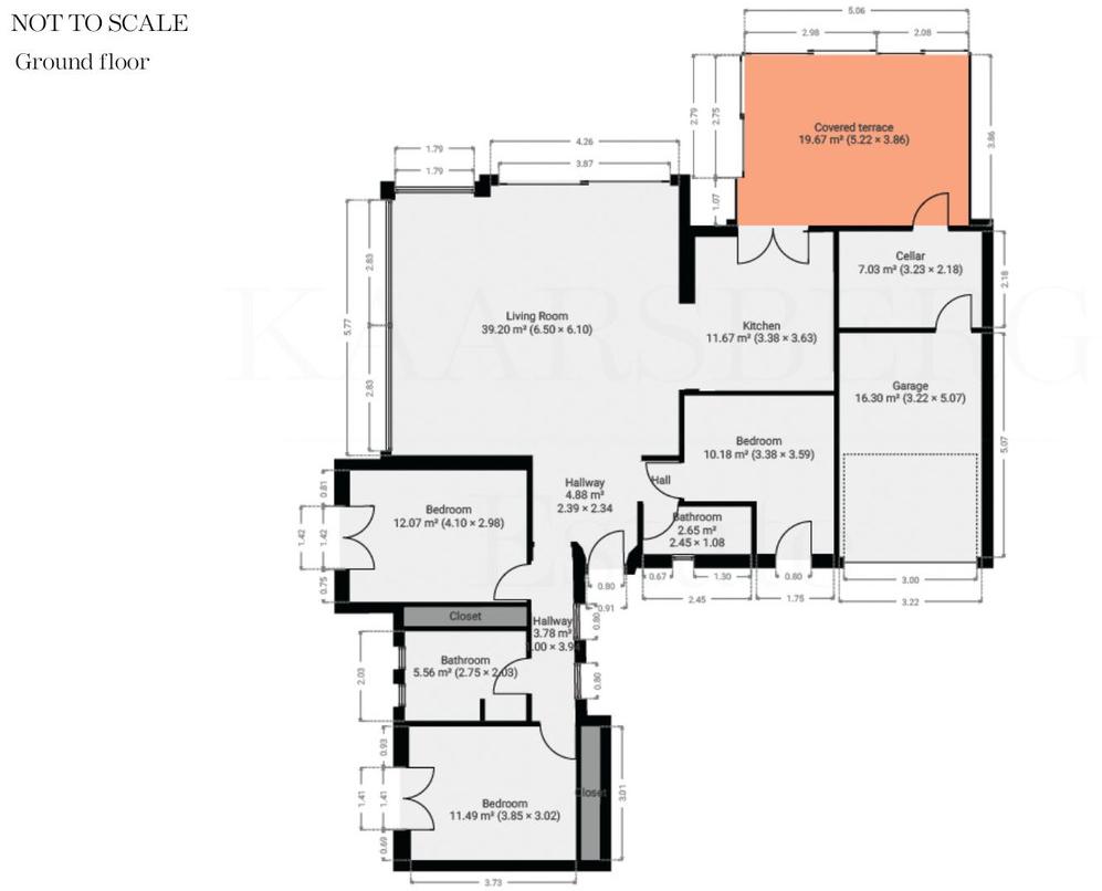
Bedrooms3
Salles de bains2
Superficie du terrain119m²
Poolyes
Gardenyes
Parkingno
Built year1984
Instelling: dicht bij winkels, dicht bij zee, dicht bij stad, urbanisatie
Orientatie: Zuidoost, Zuid, Zuidwest
Staat: uitstekend
Zwembad: privé
Klimaatregeling: airconditioning, warme airconditioning, koude airconditioning, U / F-verwarming, U / F / H-badkamers
Uitzicht: zee, bergen, haven, panoramisch, zwembad, stedelijk
Caractéristiques : Terrasse couverte, Armoires encastrées, Terrasse privée, WiFi, Débarras, Buanderie, Salle de bains attenante, Sol en marbre, Double vitrage, Fibre optique
Meubels: volledig gemeubileerd
Keuken: volledig ingericht
Tuin: privé, aangelegd, eenvoudig onderhoud
Beveiliging: elektrische jaloezieën, alarmsysteem
Parkeren: Garage, meer dan één, privé
Hulpprogramma's: elektriciteit, drinkwater
Categorie: Wederverkoop
Ref.no: RSOR5217520
Price: € 1.375.000,-

Plus d'information ›››
Te koop Vrijstaande Villa Costa Del Sol La Capellania € 1.375.000,-

Bienvenue dans cette magnifique villa méditerranéenne, située dans le quartier recherché de La Capellanía, réputé pour son environnement calme, ses vues imprenables sur la mer et son accès facile à toutes les commodités.

Cette charmante maison offre trois chambres et deux salles de bains, réparties sur 119 m² de surface habitable sur un terrain généreux de 600 m².
La villa est conçue pour un confort de vie optimal toute l'année, avec chauffage au sol, climatisation et une abondance de lumière naturelle dans chaque pièce.

L'espace de vie ouvert communique harmonieusement avec une cuisine entièrement équipée et une terrasse couverte, créant ainsi un cadre idéal pour se détendre et recevoir.
Sortez et profitez de la piscine privée, de la grande terrasse et de la vue imprenable sur Fuengirola et la mer Méditerranée.

La propriété est entièrement meublée et prête à être habitée, avec un garage et tout le confort moderne auquel vous pouvez vous attendre.
À quelques minutes en voiture, vous trouverez des restaurants, des boutiques et des plages, ce qui fait de cette maison un lieu idéal comme résidence principale ou secondaire.

Un véritable joyau de la Costa del Sol qui allie calme, intimité et proximité de la côte.

Alternatives

1-7980e48d732b6fc85c14b43b94d2aa54.jpg

Te koop Vrijstaande Villa Costa Del Sol Sierrezuela € 1.399.000,-

Price € 1.399.000,-
Plus d'information
1-7980e48d732b6fc85c14b43b94d2aa54.jpg

Te koop Vrijstaande Villa Costa Del Sol Estepona € 1.320.000,-

Price € 1.320.000,-
Plus d'information
1-7980e48d732b6fc85c14b43b94d2aa54.jpg

Te koop Vrijstaande Villa Costa Del Sol Marbesa € 1.295.000,-

Price € 1.295.000,-
Plus d'information
1-7980e48d732b6fc85c14b43b94d2aa54.jpg

Te koop Vrijstaande Villa Costa Del Sol Fuengirola € 1.390.000,-

Price € 1.390.000,-
Plus d'information
Disclaimer | Links
Casadelmar %lng_cookie_notice% %lng_close%
x