Los Arqueros

Te koop Gelijkvloers appartement Costa Del Sol Los Arqueros € 425.000,-

Ref.no: RSOR5306479
Price: € 425.000,-

1-7980e48d732b6fc85c14b43b94d2aa54.jpg

Te koop Gelijkvloers appartement Costa Del Sol Los Arqueros € 425.000,-

Bedrooms2
Salles de bains2
Living area97m²
Poolyes
Gardenyes
Parkingyes
Instelling: dicht bij golf, dicht bij winkels, dicht bij de stad, dicht bij scholen, verstedelijking
Orientatie: Zuid
Staat: Renovatie vereist
Zwembad: gemeenschappelijk
Klimaatregeling: A / C, A / C, Open haard
Uitzicht: zee, panoramisch
Équipements : Terrasse couverte, Placards intégrés, Terrasse privée, Court de tennis, Accès pour personnes à mobilité réduite, Barbecue
Meubels: volledig gemeubileerd
Keuken: volledig ingericht
Tuin: Gemeenschappelijk
Parkeren: straat, meer dan één, gemeenschappelijk
Categorie: Koopje
Ref.no: RSOR5306479
Price: € 425.000,-

Plus d'information ›››
Te koop Gelijkvloers appartement Costa Del Sol Los Arqueros € 425.000,-

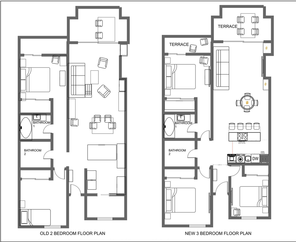
Appartement 2 chambres avec vue panoramique sur la mer et possibilité de conversion en 3 chambres – Puerto del Almendro, Los Arqueros

Situé en hauteur au sein du quartier prisé de Puerto del Almendro à Los Arqueros, ce lumineux appartement de deux chambres offre une vue panoramique imprenable sur la mer Méditerranée. La résidence est réputée pour ses jardins magnifiquement entretenus et son espace piscine parmi les plus charmants de la région, offrant une vue imprenable sur la mer et une atmosphère paisible.

À l'intérieur, l'appartement est baigné de lumière naturelle et offre un agencement confortable, prêt à être habité immédiatement, tout en présentant une excellente opportunité de rénovation pour les acheteurs souhaitant personnaliser l'espace.

La propriété présente les caractéristiques suivantes :
✔ 2 chambres spacieuses
✔ 2 salles de bains attenantes
✔ Espace de vie et salle à manger lumineux
✔ Cuisine entièrement équipée
✔ Climatisation (chaud et froid)
✔ Deux terrasses privatives indépendantes, chacune bénéficiant d'une orientation unique et d'une vue spectaculaire sur la mer
✔ Accès sans marche pour plus de commodité

Les deux terrasses constituent un atout majeur, vous permettant de profiter du soleil tout au long de la journée tout en admirant une vue panoramique imprenable sur la mer depuis différents points de vue.

En plus d'être un logement confortable en l'état, cet appartement offre un excellent potentiel de rénovation et de réaménagement. Avec un réaménagement approprié, il pourrait être transformé en un appartement de 3 chambres, créant ainsi une plus-value et une flexibilité accrues pour les futurs propriétaires. Des plans conceptuels illustrant cette transformation sont disponibles dans la galerie photos.

Située à quelques minutes de San Pedro, de Puerto Banús, des terrains de golf, des écoles internationales et de toutes les commodités, cette propriété offre un équilibre parfait entre tranquillité et accessibilité.

Que vous recherchiez :
✔ Une résidence permanente
✔ Une résidence secondaire de luxe
✔ Un superbe projet de rénovation avec un fort potentiel de valorisation
✔ Ou un investissement très demandé à Benahavís

Un parfait équilibre entre valeur actuelle et potentiel futur, dans l'une des communautés les plus prisées de la Costa del Sol.

Contactez-nous dès aujourd'hui pour plus de détails !

Alternatives

BOHADP17_264_V0_9805.jpg

Te koop Appartement Costa Del Sol Manilva € 370.000,-

Price € 370.000,-
Plus d'information
BOHACP1380_4357_V1_A8AB.jpg

Te koop Appartement Costa Del Sol Estepona € 480.000,-

Price € 480.000,-
Plus d'information
BOHACP1447_4970_V1_A716.jpg

Te koop Appartement Costa Del Sol Torremolinos € 429.000,-

Price € 429.000,-
Plus d'information
BOHADP3_53_V0_70A0.jpg

Te koop Appartement Costa Del Sol Mijas Costa € 325.000,-

Price € 325.000,-
Plus d'information
Disclaimer | Links
Casadelmar %lng_cookie_notice% %lng_close%
x