Mijas Costa

Te koop Half vrijstaand huis Costa Del Sol Mijas Costa € 399.950,-

Ref.no: RSOR5337022
Price: € 399.950,-

1-7980e48d732b6fc85c14b43b94d2aa54.jpg

Te koop Half vrijstaand huis Costa Del Sol Mijas Costa € 399.950,-

Bedrooms3
Salles de bains3
Superficie du terrain277m²
Living area158m²
Poolyes
Gardenyes
Parkingyes
Built year2006
Instelling: Dicht bij golf, verstedelijking
Orientatie: Oost, West
Staat: redelijk
Zwembad: gemeenschappelijk
Klimaatregeling: airconditioning, open haard
Uitzicht: Panoramisch
Caractéristiques : Terrasse couverte, armoires encastrées, terrasse privée, solarium, salle de bains attenante, sol en marbre, double vitrage
Meubilair: niet gemeubileerd
Keuken: volledig ingericht
Tuin: privé
Beveiliging: beveiligd complex, intercom, alarmsysteem
Parkeren: Open, privé
Nutsbedrijven: elektriciteit
Categorie: Wederverkoop
Ref.no: RSOR5337022
Price: € 399.950,-

Plus d'information ›››
Te koop Half vrijstaand huis Costa Del Sol Mijas Costa € 399.950,-

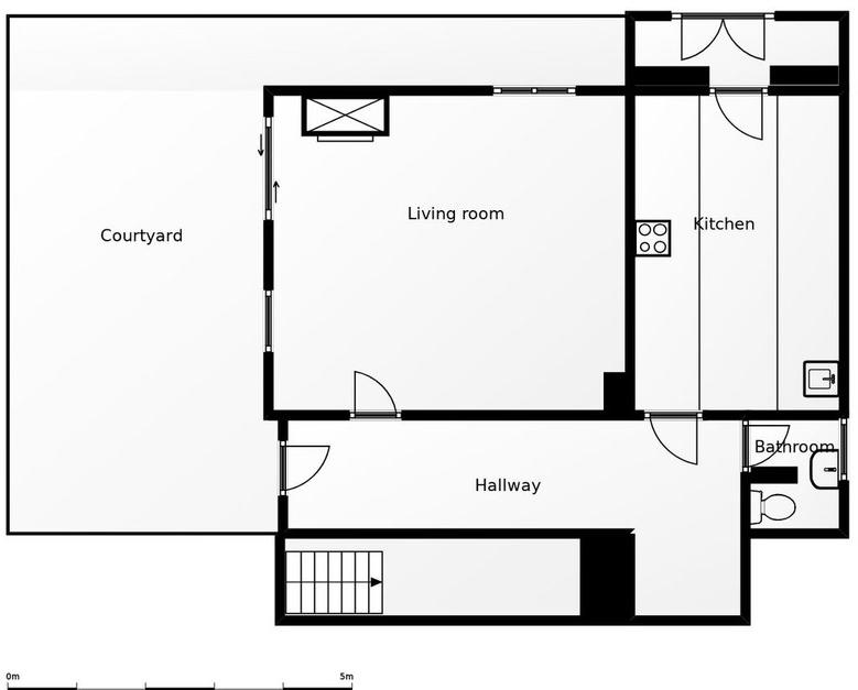
Maison mitoyenne de 3 chambres et 2 salles de bain et demie située dans la partie haute de la Riviera del Sol. Elle bénéficie d'un grand jardin privatif entourant la propriété sur trois côtés. Un emplacement de parking est également disponible. Le rez-de-chaussée comprend un hall d'entrée, un salon spacieux, une cuisine équipée et des toilettes invités. À l'étage, on trouve 3 chambres spacieuses, dont une avec salle de bain attenante, et une salle de bain familiale. Un escalier permet d'accéder au solarium sur le toit. Une grande piscine commune est située à proximité de la maison. Des travaux de rénovation seraient à prévoir, ce qui explique le prix demandé.
Maison Jumelée, Mijas Costa, Costa del Sol.
3 chambres, 2,5 salles de bains, surface construite 158 m², terrasse 6 m², jardin/terrain 277 m².
Situation : Proche du golf, zone urbanisée.
Orientation : Est, Ouest.
État : Passable.
Piscine : Communale.
Climatisation : Climatisation, Cheminée.
Vues : Panoramiques.
Caractéristiques : Terrasse couverte, placards intégrés, terrasse privée, solarium, salle de bains attenante, sol en marbre, double vitrage.
Mobilier : Non meublé.
Cuisine : Entièrement équipée.
Jardin : Privé.
Sécurité : Complexe fermé, interphone, système d'alarme.
Parking : Ouvert, privé.
Services publics : Électricité.
Catégorie : Revente.

Alternatives

1-7980e48d732b6fc85c14b43b94d2aa54.jpg

Te koop Duplexwoning Costa Del Sol Estepona € 420.000,-

Price € 420.000,-
Plus d'information
1-7980e48d732b6fc85c14b43b94d2aa54.jpg

Te koop Half vrijstaand huis Costa Del Sol Vélez-málaga € 375.000,-

Price € 375.000,-
Plus d'information
1-7980e48d732b6fc85c14b43b94d2aa54.jpg

Te koop Duplexwoning Costa Del Sol La Cala De Mijas € 349.950,-

Price € 349.950,-
Plus d'information
1-7980e48d732b6fc85c14b43b94d2aa54.jpg

Te koop Duplexwoning Costa Del Sol Benalmadena € 403.000,-

Price € 403.000,-
Plus d'information
Disclaimer | Links
Casadelmar %lng_cookie_notice% %lng_close%
x