Coín

Te koop Finca - Cortijo Costa Del Sol Coín € 420.000,-

Ref.no: RSOR5314471
Price: € 420.000,-

1-7980e48d732b6fc85c14b43b94d2aa54.jpg

Te koop Finca - Cortijo Costa Del Sol Coín € 420.000,-

Bedrooms5
Salles de bains3
Superficie du terrain6750m²
Living area173m²
Poolyes
Gardenyes
Parkingyes
Built year2004
Instelling: Land
Orientatie: Oost
Staat: redelijk
Zwembad: privé
Klimaatregeling: airconditioning, open haard
Uitzicht: Bergen, Land
Caractéristiques : Terrasse couverte, Placards intégrés, Proximité des transports, Terrasse privée, Maison d'hôtes, Salle de bains attenante, Double vitrage
Meubilair: niet gemeubileerd
Keuken: volledig ingericht
Tuin: privé
Beveiliging: Gated Complex, Alarmsysteem
Parkeren: Open, privé
Hulpprogramma's: elektriciteit, drinkwater
Categorie: Wederverkoop
Ref.no: RSOR5314471
Price: € 420.000,-

Plus d'information ›››
Te koop Finca - Cortijo Costa Del Sol Coín € 420.000,-

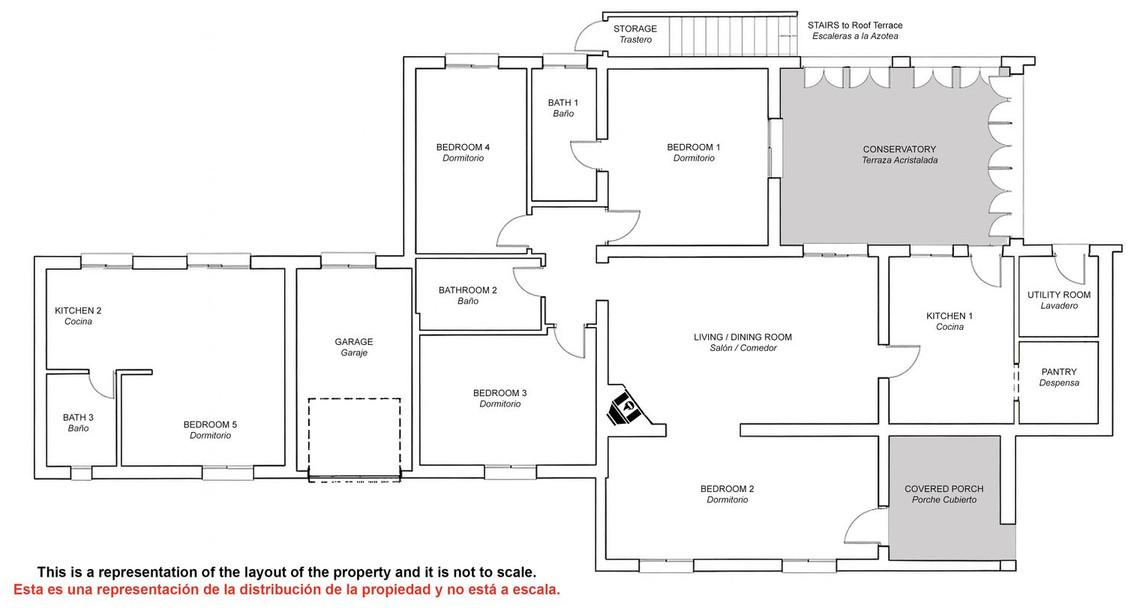
Située dans un endroit paisible offrant de magnifiques vues dégagées sur le village d'Alhaurín el Grande, cette charmante maison de campagne de plain-pied offre le mélange parfait d'intimité, de confort et de charme andalou.

La maison principale comprend :
• Une cuisine entièrement équipée avec accès direct à une grande terrasse
• Un garde-manger séparé
• Un salon lumineux
• Une salle à manger avec cheminée, idéale pour des soirées chaleureuses.
• 3 chambres confortables
• 2 salles de bains, dont une attenante à la chambre principale
• Une buanderie séparée

✨ Un véritable atout : la terrasse couverte
La cuisine s'ouvre sur une vaste terrasse/véranda couverte faisant office d'espace de vie supplémentaire. Actuellement aménagée en salle à manger, elle peut être entièrement ouverte en été, permettant d'en profiter toute l'année.

De grandes portes vitrées offrent une vue imprenable sur la piscine, le jardin et la campagne environnante.

Appartement indépendant pour invités
La propriété bénéficie également d'un charmant appartement d'invités avec kitchenette et salle de bains, idéal pour accueillir famille et amis ou pour une éventuelle location.

???? Grand potentiel d'extension
À l'arrière de la maison, un grand débarras — actuellement utilisé pour le matériel de jardinage — pourrait facilement être intégré à la maison principale pour créer un espace de vie supplémentaire.

À l'origine, la maison comportait 3 chambres, une salle à manger séparée et un salon ; il est donc possible de rétablir la configuration d'origine si on le souhaite.

Emplacement idéal :
• à 4,5 km du centre commercial La Trocha
• à 6 km du centre-ville d'Alhaurín el Grande
• À environ 1 km de l'A355
• À 30 minutes de l'aéroport de Malaga

Cette propriété offre la combinaison parfaite entre la tranquillité de la campagne et un accès facile aux commodités — idéale comme résidence permanente ou lieu de villégiature sous le soleil andalou.

Alternatives

1-7980e48d732b6fc85c14b43b94d2aa54.jpg

Te koop Finca - Cortijo Costa Del Sol Coín € 480.000,-

Price € 480.000,-
Plus d'information
1-7980e48d732b6fc85c14b43b94d2aa54.jpg

Te koop Finca - Cortijo Costa Del Sol Monda € 449.000,-

Price € 449.000,-
Plus d'information
1-7980e48d732b6fc85c14b43b94d2aa54.jpg

Te koop Finca - Cortijo Costa Del Sol Pizarra € 450.000,-

Price € 450.000,-
Plus d'information
1-7980e48d732b6fc85c14b43b94d2aa54.jpg

Te koop Finca - Cortijo Costa Del Sol El Padron € 490.000,-

Price € 490.000,-
Plus d'information
Disclaimer | Links
Casadelmar %lng_cookie_notice% %lng_close%
x